X

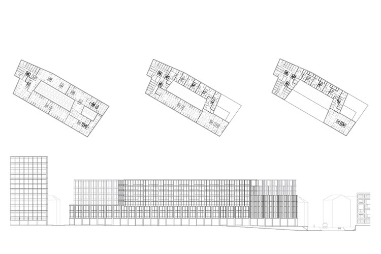
BAUFELD H

COMPETITION | MEIER HUG ARCHITEKTEN

ZURICH | SWITZERLAND

2010