X

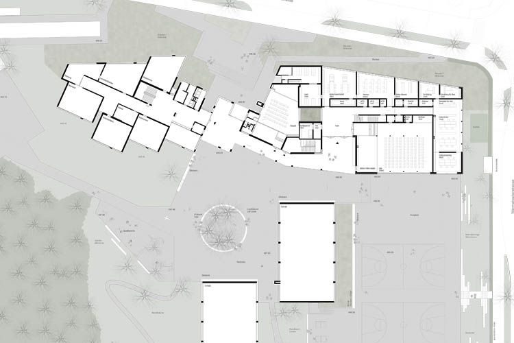
PRIMAR SCHOOL

COMPETITION | RYF ARCHITEKTEN

USTER | SWITZERLAND

2012